238 S 8th Ave  Pocatello, Idaho

$234,900   •   Ranch   •   2 bed, 1 bath   •   1,030 sq ft   •   0.10 acres
Add to FavoritesAdded

Loan Payment

%
years
$
$
 
Advanced  |  Reset

 


Please verify location. A map has been generated based on the address for your convenience, but it has not been verified for accuracy.

 

MLS #582116

Asking Price
$234,900
Status
ACTIVE
Location
University Area
Style
Ranch
Year Built
1941
Floor Area
1,030 sq ft
Rooms
2 bed, 1 bath
Garage
1-car detached
Acreage
0.10 acres
Days on Market
0 Days

 

Property Description

Located close to the University and a nearby park, this inviting home offers both convenience and a welcoming feel. You'll appreciate the curb appeal and low-maintenance landscaping with a fully fenced backyard. As a bonus, the washer, dryer, and water softener are all included! Outside, you'll find a storage shed, a detached garage, and off-street parking behind the home, providing flexibility for guests/ additional storage. Whether you're searching for a cozy primary residence, a low-maintenance property, or an investment opportunity near campus, this home combines charm, functionality, and a desirable location.

 

Property Features

Levels

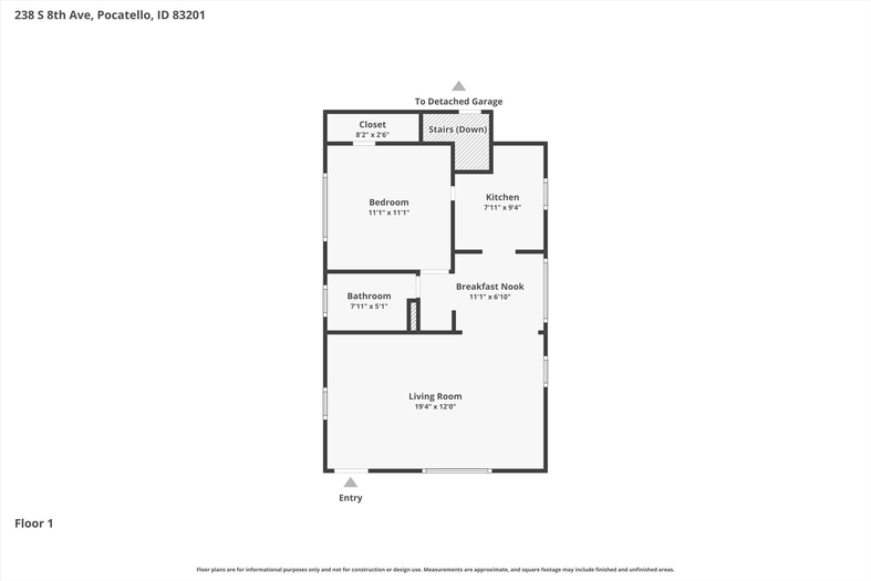
Main Level
645 sq. ft.
1 Bedroom, 1 Bathroom
Basement
385 sq. ft.
1 Bedroom

Schools

Elementary School:  Washington
Middle School:  Irving
High School:  Century

Interior

Interior Features: 
Appliances Included:  Dryer, Range/Oven, Refrigerator, Washer, Water Heater-Electric, Water Softener-Owned
Featured Rooms: 
Laundry Location:  Basement

Exterior

Exterior Finish:  Other
Exterior Accent: 
Exterior Features: 
Roof:  3-Tab
Window Panes: 
Window Frames: 
Patio/Deck: 
Driveway: 

Utilities

Heat Source:  Gas
Heat Type:  Forced Air
Air Conditioning:  Central
Electricity Provider:  Idaho Power
Average Electric: 
Avg Non-Electric Heat: 
Avg Water/Sewer/Gas: 

Construction

Year Built:  1941
Builder: 
Construction Status:  Existing
Construction Style:  Frame
Foundation:  Concrete
% Basement Finished: 
Basement Features:  Partial Basement
Fixer Upper?  No

Lot

Acreage:  0.10 acres
Lot Dimensions: 
Location:  Near University/College
Topography/Setting: 
Fence:  Full, Wood
Landscaping: 
Irrigation: 
Sewer Type:  City Sewer
Subdivision:  Pocatello Townsite
Parcel: 
Zoning–City:  Residential
Zoning–County:  Residential Rural

Financial

Taxes:  $1,056.40
Homeowner's Exemption: 
Assoc Fee Includes: 
Terms:  Cash, Conventional
Agent Owned? 

 

Request a Showing

 

Disclaimer

This IDX listing is provided courtesy of Century 21 High Desert for personal, non-commercial use only. Information is deemed reliable but is not guaranteed to be accurate.